手 機:19924390438
郵 箱:market@gdhuanmei.com
電 話:020-85681020(華南)
網 址:m.lowpower.cn
地 址:廣州市番禺區番禺大道北555號天安科技園

項目簡介

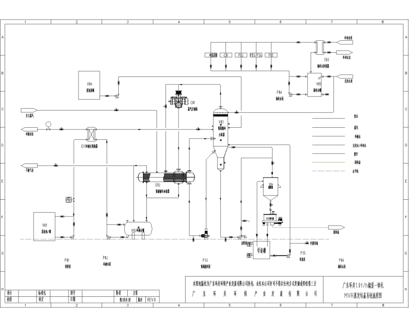
項目名稱:氨基酸含鹽廢水處理項目
設計能力:1T/H撬裝一體化MVR蒸發結晶系統
客戶單位:廣東麗臣奧威實業有限公司
設計單位:廣東環美環保產業發展有限公司
物料情況
進水水質

方案設計

項目現場





1
撬裝一體化蒸發器-工廠現貨0.5t/h


02
撬裝一體化蒸發器-工廠現貨1t/h


03
撬裝一體化蒸發器-工廠現貨1.5t/h


04
撬裝一體化蒸發器-工廠現貨2t/h


撬裝一體化蒸發器應用案例
海淡所


撬裝一體化蒸發器應用案例
垃圾滲濾液全量化處理



撬裝一體化蒸發器應用案例
鹽湖提鋰行業


廣東環美撬裝一體化MVR蒸發器采用標準化、模塊化的設計理念,將MVR蒸發器各單元高度集成于一體,把MVR蒸發器的優點和撬裝設備便捷運輸的特點有機的結合在一起。和傳統蒸發器相比,撬裝一體化MVR蒸發器具有占地面積更小、免現場安裝、維護方便等諸多優點。
match
1、關于處理量的選擇
* 您公司進蒸發設備的廢水處理總量,除以每天的運行時間,即可得處理量,蒸發器一般24小時連續運行。
舉例說明:比如您需要蒸發處理的水量Q為20t/d ,每天24小時,那么蒸發器的處理量W=Q/24=20/24≈0.83t/h,圓整后您可以選擇蒸發量為1t/h的MVR蒸發器。
2、關于板式和管式的選擇
* 管式蒸發器比較通用,適用范圍更廣。通俗來說,能用板式蒸發器來處理的物料一定能用管式蒸發器來處理。但用管式蒸發器能處理的物料,板式蒸發器不一定能處理。板式蒸發器適用于濃縮以及有機物濃度不高、富集后物料流動性依然很好也不粘稠的高鹽廢水結晶。
同等工況下,板式蒸發器的效率比管式蒸發器高,占地也相對少一些,維修清理也更方便。
* 那么管式和板式蒸發器如何初步選擇?根據您的物料情況來選擇。
若您的物料只需濃縮,那么管式和板式都可以,從效率等各方面來考慮,建議優選板式;若您的物料需要結晶,但物料有機物不多,富集后流動性依然很好,那么可優選板式;其它工況選擇管式。
3、關于濃縮型和結晶型的選擇
* 濃縮型蒸發器主要用來提高物料濃度,用來達到某一個特定的濃度點,食品、醫藥、飲品行業應用較多。
比如桃汁、蘋果汁、中藥提取液的濃縮提濃等等;或者含鹽量很低的廢水濃縮減量,都可以選擇濃縮型蒸發器。
* 結晶型蒸發器主要用來蒸發結晶,通過蒸發器提高濃度,并且需要將溶解的無機鹽結晶分離出來,此種工況選擇結晶型蒸發器。
4、關于標準版以及高配版的選型
* 標準版采用性價比高的零部件供應商,適合于連續運行要求相對不高的工況。
* 高配版采用一些合資或高端品牌作為供應商,適用于連續不間斷運行要求較高的場合,比如連續運行時間不小于15天等。
5、關于材質的選擇
* 目前蒸發器主要用于廢水處理上,高溫情況下物料腐蝕性比較大,目前廣東環美蒸發器標配鈦材材質。
若您的物料狀況,確實不需要鈦材,那么也可以根據物料情況定制材質,我司提供304、316L、2205等材質的蒸發器定制。
服務熱線
020-85681020(華南)
郵箱:market@gdhuanmei.com
聯系人:周經理19924390438
研發中心:廣州市番禺區番禺大道北555號天安總部中心1號樓9層
生產基地:廣東省韶關市湞江區獅塘路39號

掃一掃,關注環美